Mucveida pirts
Mucveida pirts
Mucveida pirts
Mucveida pirts
Mucveida pirts

Mucveida pirts

ESTO līzinga attēls

Patēriņa kredīts. Aizdevums individuāliem mērķiem. Izvēlies savām vajadzībām atbilstošu aizdevumu un saņem apstiprinājumu nekavējoties.

Kavdrātmetri: 11.04

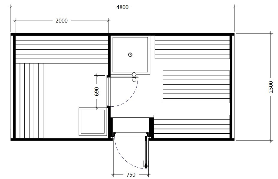
Mucveida pirts jūsu spa rituāliem.

Izgatavosim pirti pēc jūsu vēlamiem izmēriem.

 

 

Attēlos redzama mucveida pirts

Garums 4.8m

Platums 2.3m

Bitumena jumta segums ar apakšklāju, metāla palodzes

Tonis no mūsu krāsu kataloga ( pieejami 5 krāsu toņi,Remmers)

Savelkošais elements - nerūsējošā tērauda stīpas, 

Apgaismojums pie ieejas durvīm - divas lampas

Ieejas durvis slēdzamas

  • Ventilācija:Dabīgā gaisa ventilācija izbūvēta pirts telpā un atpūtas zonā
  • Pirts sienas  veidotas no 45mm bieziem,ēvelētiem, egles mucas dēļiem
  •  

Pirts telpa 2 x 2.3m

Melnalkšņa lāvas

Melnalkšņa grīdas redele

Rūdīta stikla durvis 

Rūdīts atgāžams  logs 

Ar malku kurināma krāsns, kurināma no ārpuses

  • Ugunsdrošības apsvērumu dēļ, pirts krāsns montāžai izmantojam Cemrit – nedegoša cementa plāksnes
  • Drošības sēta ap krāsni
  • Metāla krāsns paliktnis,paaugstinājums zem pirts krāsns
  • Metāla aizsargplāksne;

Ūdens tvertne ar ventili, ērtākai ūdens paņemšanai

Pirts krāsns akmeņi

Izolēts dūmvads ar jumtiņu

Pirts lampa virs ieejas durvīm ar slēdzi

 

Atpūtas zona

2.8m x 2.3m

Soli - mantu uzglabāšanas kastes un galds

Elektroinstalācija iebūvēta sienās ( iebūvētas gaismas, slēdži, rozetes)

Atgāžams logs

 

Dušas zona

Caurplūdes sildītājs ar dušas klausuli
Grīdas redele, izņemama, ērtākai dušas uzkopšanai,
Grīdā divkomponentu hidroizolācija

Dušas durvis

 

7200EUR

*Cena norādīta bez PVN

facbook ikona whatsapp ikona